Volg ons
A
Verkocht onder voorbehoud

Malzwin 2634

137 m²
/  255 m²
5 slaapkamers

Deze prachtige 2-onder-1 kapwoning met garage tref je in een fijne kindvriendelijke woonwijk van Julianadorp. De woning is zeer degelijk gebouwd, goed geïsoleerd en is uitstekend verzorgd door de huidige eigenaren.

Deel op social media:

Kenmerken

Bouwjaar: 2000
Energielabel: A
Type ketel: Remeha
Jaar ketel: 2022
Buurt: Malzwin
Aanvaarding: In overleg
Soort: Eengezinswoning
Type: 2-onder-1-kap
Woonoppervlakte: 137 m²
Perceeloppervlakte: 255 m²
Inhoud: 511 m³
Aantal kamers: 6
Aantal slaapkamers: 5
Aantal woonlagen: 3
Bouwvorm: Bestaande bouw
Ligging: Zuidoost

Isolatie: Dakisolatie, Muurisolatie, Vloerisolatie, HR++glas

Dak type: Schilddak

Dak materialen: Pannen

Tuin: Achtertuin, Voortuin

Berging / schuur: Vrijstaande houten berging

Parkeerfaciliteiten: Op eigen terrein

Garage: Aangebouwd steen

Voorzieningen: Elektra, Water

Bijzonderheden: Zonnepanelen, Schuifpui, Mechanische ventilatie

Bouwjaar:
2000
Energielabel:
A
Buurt:
Malzwin
Aanvaarding:
In overleg
Soort:
Eengezinswoning
Type:
2-onder-1-kap
Woonoppervlak:
137 m²
Perceeloppervlak:
255 m²
Inhoud:
511 m³
Aantal kamers:
6 kamers
Aantal slaapkamers:
5 slaapkamers
Aantal woonlagen:
3 verdiepingen
Bouwvorm:
Bestaande bouw
Ligging:
Zuidoost
Dak type:
Schilddak
Dak materialen:
Pannen
Tuin:
Achtertuin
Voortuin
Parkeerfaciliteiten:
Op eigen terrein
Garage:
Aangebouwd steen
Voorzieningen:
Elektra
Water
Isolatie:
Dakisolatie
Muurisolatie
Vloerisolatie
HR++glas
Isolatie:
Dakisolatie
Muurisolatie
Vloerisolatie
HR++glas
Bijzonderheden:
Zonnepanelen
Schuifpui
Mechanische ventilatie

Omschrijving

Deze prachtige 2-onder-1 kapwoning met garage tref je in een fijne kindvriendelijke woonwijk van Julianadorp. De woning is zeer degelijk gebouwd, goed geïsoleerd en is uitstekend verzorgd door de huidige eigenaren. Scholen, winkelcentra en openbaar vervoer bevinden zich in de directe omgeving. En wilt u ontspannen op het strand? Ook dat is binnen 10 minuten bereikbaar op de fiets.

 

Indeling: entree, hal met meterkast, trapopgang en toiletruimte. De woonkamer is zeer ruim en heeft aan de voorzijde een zitkamer met erker en goede lichtinval en aan de achterzijde tref je de open keuken en de eetkamer. Hier kun je een grote eettafel kwijt om met het gezin, vrienden of familie te dineren. De keuken zelf is met diverse inbouwapparatuur uitgevoerd zoals gaskookplaat, vaatwasser, koel-/vriescombinatie en combi-oven. Vanuit de keuken kun je de nette garage bereiken via een loopdeur. De garage heeft de afmeting 3.20m x 6.70m en dat is wat groter dan standaard en tevens uitgerust met een kleine bijkeuken v.v. keukenblokje. De achtertuin is netjes aangelegd en voorzien van terrassen, gazon en een prachtige veranda met schuur achterin de tuin. Je kunt hier de ochtend geweldig starten met een kop koffie en een fijn ontbijt.

 

Op de 1e verdieping tref je 3 grote slaapkamers en een geheel betegelde badkamer. De badkamer is voorzien van ligbad met douche, 2e vrijdragend toilet, wastafelmeubel met twee wasbakken, grote spiegel en een designradiator.

 

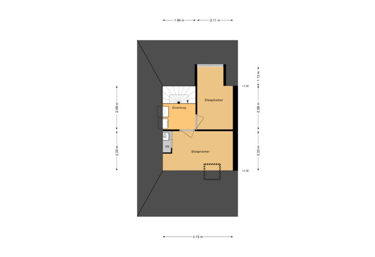
De 2e verdieping is via een vaste trap bereikbaar en op de overloop is de opstelling aanwezig van het witgoed. Aansluitend 2 slaapkamers en extra bergruimte dankzij knieschotten.

 

De woning is goed geïsoleerd, v.v. 12 zonnepanelen en goed onderhouden.
Kortom: een ideale gezinswoning met veel ruimte in een kindvriendelijke omgeving!

 

De woning wordt aangeboden met een richtprijs van € 497.500,- k.k.

Buurt:

Malzwin

Malzwin is een buurt van de wijk Wijk 08 Julianadorp in de gemeente Den Helder en ligt in de provincie Noord-Holland. Het inwonersaantal van de buurt Malzwin is 945 inwoners.
Play Video

Bezichtiging / meer info

Malzwin 2634, Julianadorp

Wil je meer informatie over dit pand of een bezichtiging plannen? Vul het formulier in en wij nemen contact met je op.