Volg ons
C
Onder bod

Boerhaavestraat 23

€ 345.000,- k.k.
128 m²
/  150 m²
4 slaapkamers

Wat een leuke jaren 30 woning met veel ruimte en sfeer!

Deel op social media:

Kenmerken

Bouwjaar: 1927
Energielabel: C
Type ketel: Intergas
Jaar ketel: 2019
Buurt: Geleerdenbuurt
Aanvaarding: Direct
Soort: Eengezinswoning
Type: Tussenwoning
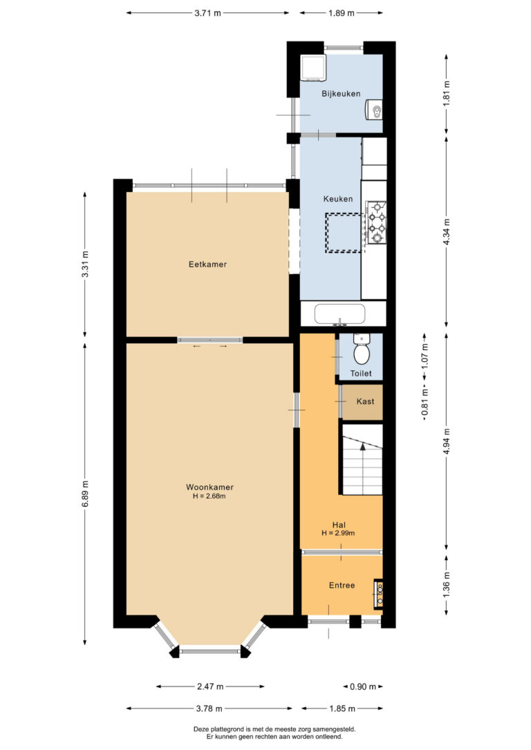
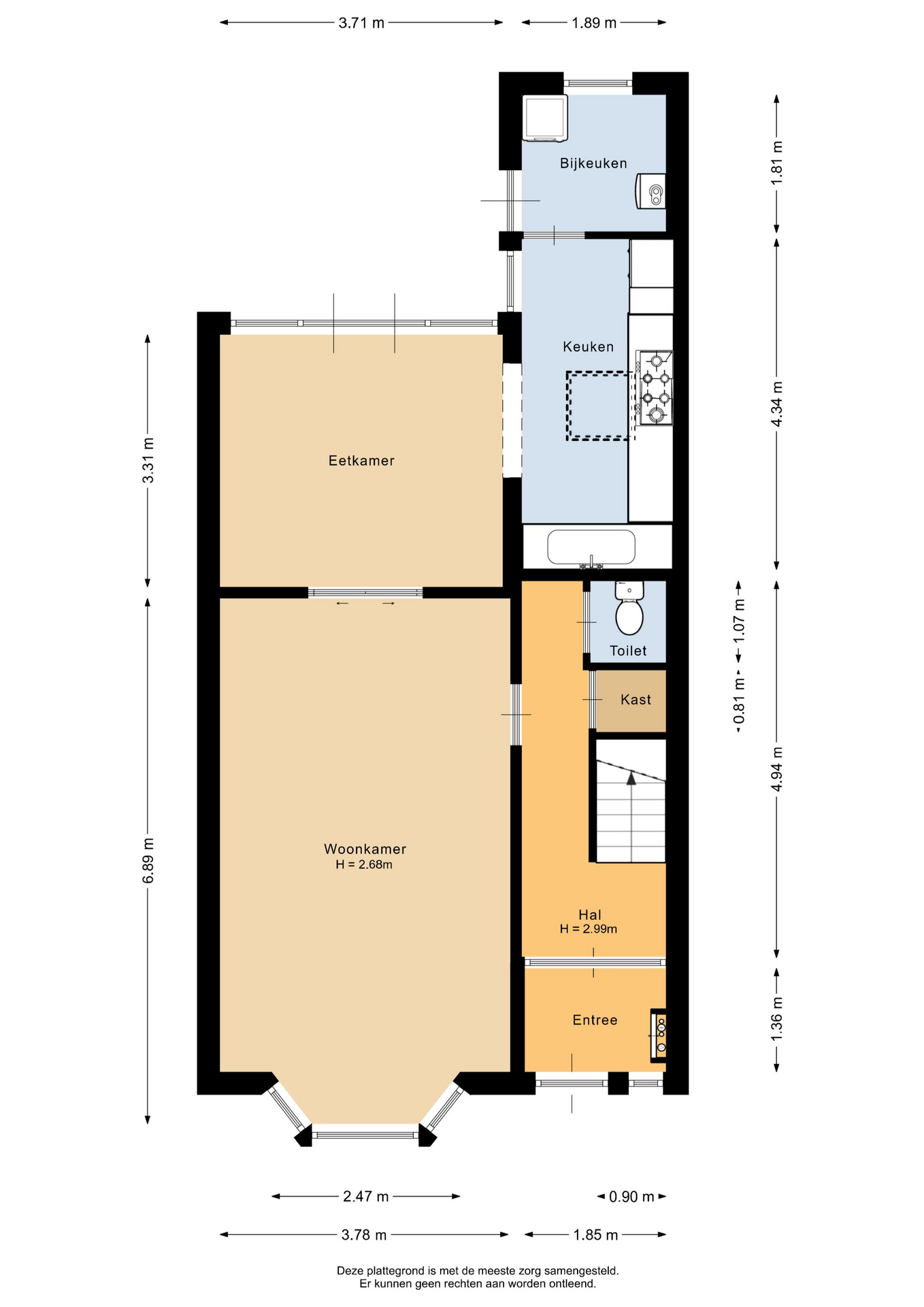
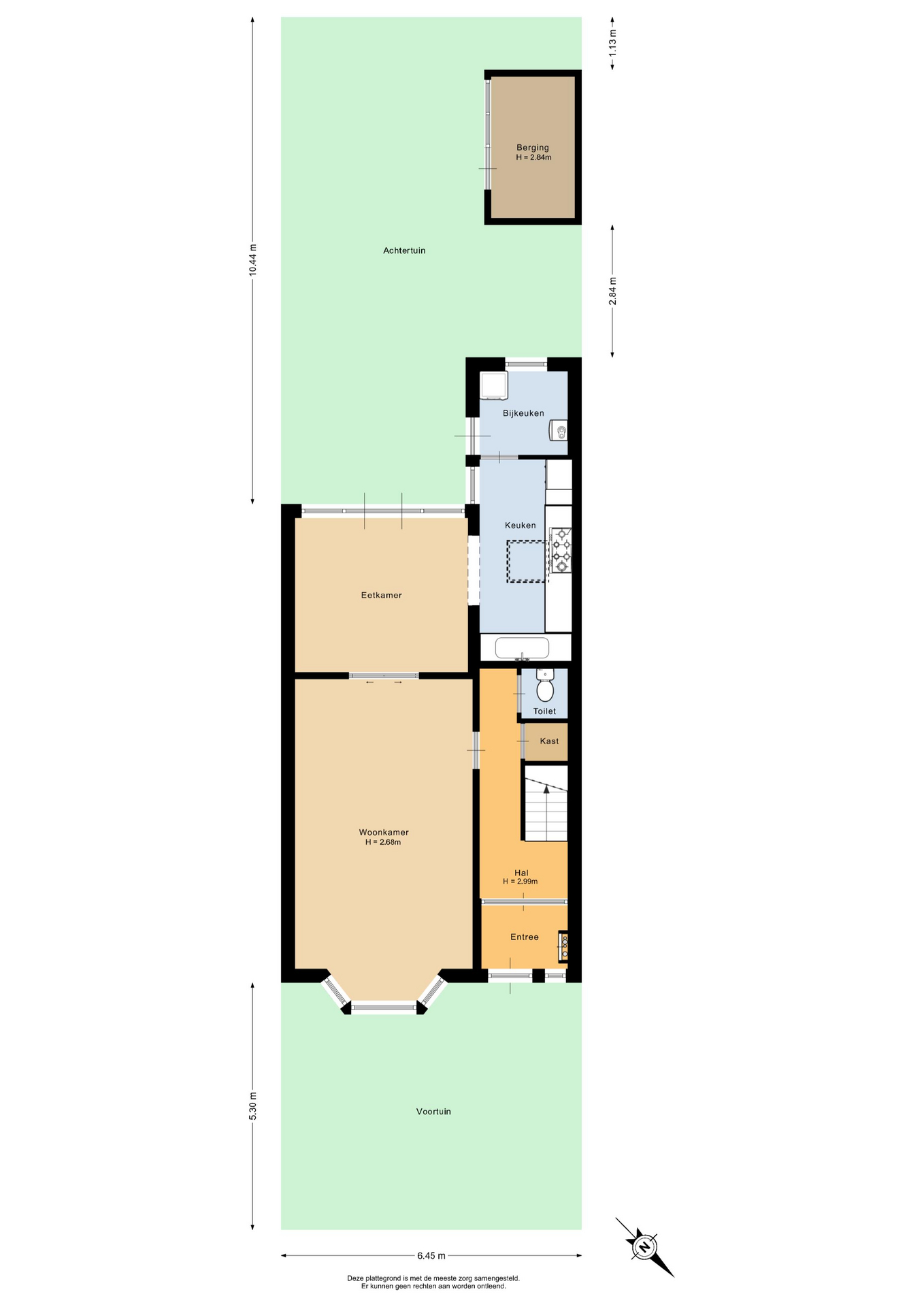
Woonoppervlakte: 128 m²
Perceeloppervlakte: 150 m²
Inhoud: 464 m³
Aantal kamers: 5
Aantal slaapkamers: 4
Aantal woonlagen: 3
Bouwvorm: Bestaande bouw
Ligging: Zuidwest

Isolatie: Dakisolatie, Vloerisolatie, HR-glas

Dak type: Zadeldak, Plat dak

Dak materialen: Pannen , Bitumineuze dakbedekking

Tuin: Achtertuin, Voortuin

Berging / schuur: Vrijstaande stenen berging

Parkeerfaciliteiten: Openbaar parkeren

Bijzonderheden: Dakkapel

Bouwjaar:
1927
Energielabel:
C
Buurt:
Geleerdenbuurt
Aanvaarding:
Direct
Soort:
Eengezinswoning
Type:
Tussenwoning
Woonoppervlak:
128 m²
Perceeloppervlak:
150 m²
Inhoud:
464 m³
Aantal kamers:
5 kamers
Aantal slaapkamers:
4 slaapkamers
Aantal woonlagen:
3 verdiepingen
Bouwvorm:
Bestaande bouw
Ligging:
Zuidwest
Dak type:
Zadeldak
Plat dak
Dak materialen:
Pannen
Bitumineuze dakbedekking
Tuin:
Achtertuin
Voortuin
Parkeerfaciliteiten:
Openbaar parkeren
Isolatie:
Dakisolatie
Vloerisolatie
HR-glas
Isolatie:
Dakisolatie
Vloerisolatie
HR-glas
Bijzonderheden:
Dakkapel

Omschrijving

Wat een leuke jaren 30 woning met veel ruimte en sfeer!

 

De woning is gelegen tegenover het station waar overigens geen hinder van ervaren wordt maar wel gemak in geval je geregeld met de trein reist.

 

Via de ruime voortuin kom je bij de mooie blank eiken voordeur waardoor je de woning kunt betreden.
Het tochtportaal met de meterkast wordt afgescheiden van de ruime hal door een authentieke, fraaie glazen afscheidingswand met bovenlichten en tussendeur.
Deze geeft je toegang tot de lichte hal met toilet, ingebouwde garderobekast, trapkast en houten trap met bewerkte trappaal en spijlen, die leidt naar de eerste verdieping.

 

De woonkamer is heerlijk ruim en heeft een mooie eikenhouten vloer op een betonnen ondervloer (’99).
Hoge plafonds met sierlijsten, kamers en suite met glas in lood schuifdeuren en strakke wanden trekken de aandacht.
Aan de achterzijde tuindeuren en aan de voorzijde een grote erker met glas-in-lood, wat zorgt voor een mooie warme licht inval.

 

De open keuken is ruim en netjes uitgevoerd met een lichte inbouwkeuken voorzien van inbouwapparatuur. Extra licht door de lichtkoepel. Aansluitend de praktische bijkeuken met de opstelling voor het witgoed. Hier hangt tevens de CV ketel (2019) en bevindt zich de deur naar de achtertuin.

 

Op de 1e verdieping zijn drie kamers gelegen waarvan de hoofdslaapkamer ook toegang heeft via schuifdeuren tot de badkamer maar de badkamer is ook bereikbaar via de overloop. De badkamer is ruim van formaat en heeft een douchecabine, hoekligbad (whirlpool), vrijdragend 2e toilet en een wastafel.

 

Vaste trap naar de zolderverdieping welke voorzien is van isolatie en een dakkapel aan de achterzijde en een dakraam aan de voorzijde. Deze ruimte kan je nog naar eigen inzicht indelen. De dakpannen en schoorsteen zijn reeds vernieuwd in 2001. Het platte dak van de uitbouw in 2002 en van de bijkeuken in 2025. Vrijwel alle kozijnen zijn van meranti, de overige van Amerikaans grenen.

 

De ruime en zonnige tuin is voorzien van sierbestrating en heeft achterin een berging met puntje. De steeg is mooi breed ideaal voor een motor of bakfiets.

 

Een sfeervolle woning waar je zo in kunt.

 

De woning wordt aangeboden met een richtprijs van € 345.000,- k.k.

Buurt:

Geleerdenbuurt

Geleerdenbuurt is een buurt van de wijk Wijk 02 Stad binnen de Linie-West in de gemeente Den Helder en ligt in de provincie Noord-Holland. Het inwonersaantal van de buurt Geleerdenbuurt is 1.475 inwoners.
Play Video

Bezichtiging / meer info

Boerhaavestraat 23, Den Helder

Wil je meer informatie over dit pand of een bezichtiging plannen? Vul het formulier in en wij nemen contact met je op.