Volg ons
D
Te koop

Boerhaavestraat 61

€ 220.000,- k.k.
84 m²
/  121 m²
4 slaapkamers

Ben je op zoek naar een ruime gezinswoning met karakter, volop mogelijkheden én een fijne locatie? Dan is Boerhaavestraat 61 precies wat je zoekt! Deze tussenwoning biedt niet alleen verrassend veel ruimte, maar vormt ook de perfecte basis voor wie zijn eigen woondromen wil realiseren.

Deel op social media:

Kenmerken

Bouwjaar: 1928
Energielabel: D
Type ketel: Intergas
Jaar ketel: 2020
Buurt: Geleerdenbuurt
Aanvaarding: Direct
Soort: Eengezinswoning
Type: Tussenwoning
Woonoppervlakte: 84 m²
Perceeloppervlakte: 121 m²
Inhoud: 345 m³
Aantal kamers: 5
Aantal slaapkamers: 4
Aantal woonlagen: 2
Eigendom: Eigen grond
Bouwvorm: Bestaande bouw
Ligging: West

Dak type: Samengesteld dak

Dak materialen: Pannen , Bitumineuze dakbedekking

Tuin: Achtertuin, Voortuin

Berging / schuur: Aangebouwde stenen berging

Parkeerfaciliteiten: Openbaar parkeren

Voorzieningen: Elektra, Vliering

Bijzonderheden: Mechanische ventilatie

Bouwjaar:
1928
Energielabel:
D
Buurt:
Geleerdenbuurt
Aanvaarding:
Direct
Soort:
Eengezinswoning
Type:
Tussenwoning
Woonoppervlak:
84 m²
Perceeloppervlak:
121 m²
Inhoud:
345 m³
Aantal kamers:
5 kamers
Aantal slaapkamers:
4 slaapkamers
Aantal woonlagen:
2 verdiepingen
Eigendom:
Eigen grond
Bouwvorm:
Bestaande bouw
Ligging:
West
Dak type:
Samengesteld dak
Dak materialen:
Pannen
Bitumineuze dakbedekking
Tuin:
Achtertuin
Voortuin
Parkeerfaciliteiten:
Openbaar parkeren
Voorzieningen:
Elektra
Vliering
Bijzonderheden:
Mechanische ventilatie

Omschrijving

Ben je op zoek naar een ruime gezinswoning met karakter, volop mogelijkheden én een fijne locatie? Dan is Boerhaavestraat 61 precies wat je zoekt! Deze tussenwoning biedt niet alleen verrassend veel ruimte, maar vormt ook de perfecte basis voor wie zijn eigen woondromen wil realiseren.

 

De woning heeft een lichte doorzonwoonkamer met praktische vaste kast en aansluitend een half open keuken. De wanden en plafonds zijn keurig afgewerkt en op de vloer ligt laminaat. De keuken is voorzien van een 5-pits gaskookplaat, afzuigkap, koel-vriescombinatie en combimagnetron. Aansluitend een halletje met vaste kast waarin het witgoed is weggewerkt en ook de cv-ketel. De badkamer is op de begane grond gesitueerd en ingericht met een wastafelmeubel, toilet, douchecabine en handdoekradiator. De badkamer beschikt over zowel natuurlijke als mechanische ventilatie.

 

De achtertuin is verzorgd aangelegd en biedt een aangebouwde stenen berging met vliering. Ook is er een buitenkraan en een achterom aanwezig.

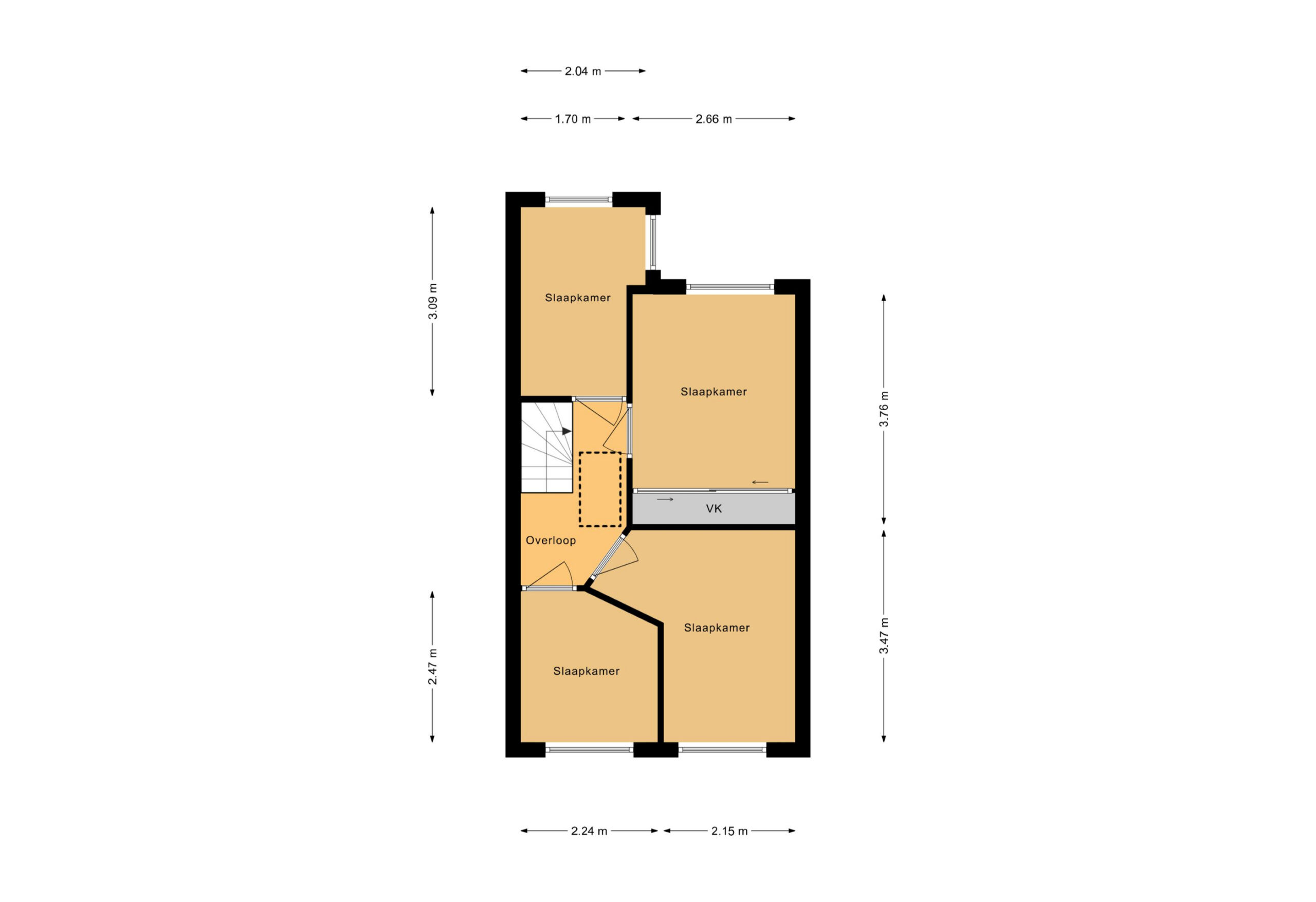
Op de eerste verdieping zijn vier slaapkamers gesitueerd. Perfect voor een groter gezin of thuiswerkplek. Via een vlizotrap op de overloop is de bergzolder bereikbaar.

 

De Boerhaavestraat is gelegen in een rustige, kindvriendelijke buurt in Den Helder. Scholen, supermarkten, sportfaciliteiten en het openbaar vervoer zijn allemaal op korte afstand bereikbaar. Ook het strand, de duinen en het centrum van Den Helder liggen op fietsafstand. Daarnaast zijn uitvalswegen richting de N9 snel en eenvoudig te bereiken.

 

De cv-ketel wordt gehuurd en hiervoor betaal je € 29,64 per maand voor zowel het gebruik als onderhoud van de cv-ketel.

 

De woning wordt aangeboden met een richtprijs van €220.000,- en is per direct beschikbaar.

Buurt:

Geleerdenbuurt

Geleerdenbuurt is een buurt van de wijk Wijk 02 Stad binnen de Linie-West in de gemeente Den Helder en ligt in de provincie Noord-Holland. Het inwonersaantal van de buurt Geleerdenbuurt is 1.475 inwoners.
Play Video

Bezichtiging / meer info

Boerhaavestraat 61, Den Helder

Wil je meer informatie over dit pand of een bezichtiging plannen? Vul het formulier in en wij nemen contact met je op.