Volg ons
F
Onder bod

De Ruijterstraat 29

€ 145.000,- k.k.
80 m²
/  82 m²
3 slaapkamers

Deze starterswoning staat in gezellige straat nabij het centrum.

Deel op social media:

Kenmerken

Bouwjaar: 1905
Energielabel: F
Type ketel: Remeha
Jaar ketel: 2015
Buurt: van Galenbuurt
Aanvaarding: In overleg
Soort: Eengezinswoning
Type: Tussenwoning
Woonoppervlakte: 80 m²
Perceeloppervlakte: 82 m²
Inhoud: 315 m³
Aantal kamers: 4
Aantal slaapkamers: 3
Bouwvorm: Bestaande bouw
Ligging: Noord

Isolatie: Dubbel glas

Dak type: Zadeldak

Dak materialen: Pannen

Tuin: Achtertuin

Berging / schuur: Aangebouwde stenen berging

Parkeerfaciliteiten: Openbaar parkeren

Bouwjaar:
1905
Energielabel:
F
Buurt:
van Galenbuurt
Aanvaarding:
In overleg
Soort:
Eengezinswoning
Type:
Tussenwoning
Woonoppervlak:
80 m²
Perceeloppervlak:
82 m²
Inhoud:
315 m³
Aantal kamers:
4 kamers
Aantal slaapkamers:
3 slaapkamers
Bouwvorm:
Bestaande bouw
Ligging:
Noord
Dak type:
Zadeldak
Dak materialen:
Pannen
Tuin:
Achtertuin
Parkeerfaciliteiten:
Openbaar parkeren
Isolatie:
Dubbel glas
Isolatie:
Dubbel glas

Omschrijving

Deze starterswoning staat in gezellige straat nabij het centrum. De huidige eigenaren hebben hier heel erg lang en met heel veel plezier gewoond en hopen dat de volgende eigenaar dit ook doet. De woning verdient modernisering en wat liefde en aandacht, maar in de basis staat er een mooi fijn huis. We vertellen je er graag meer over tijdens een rondleiding.

 

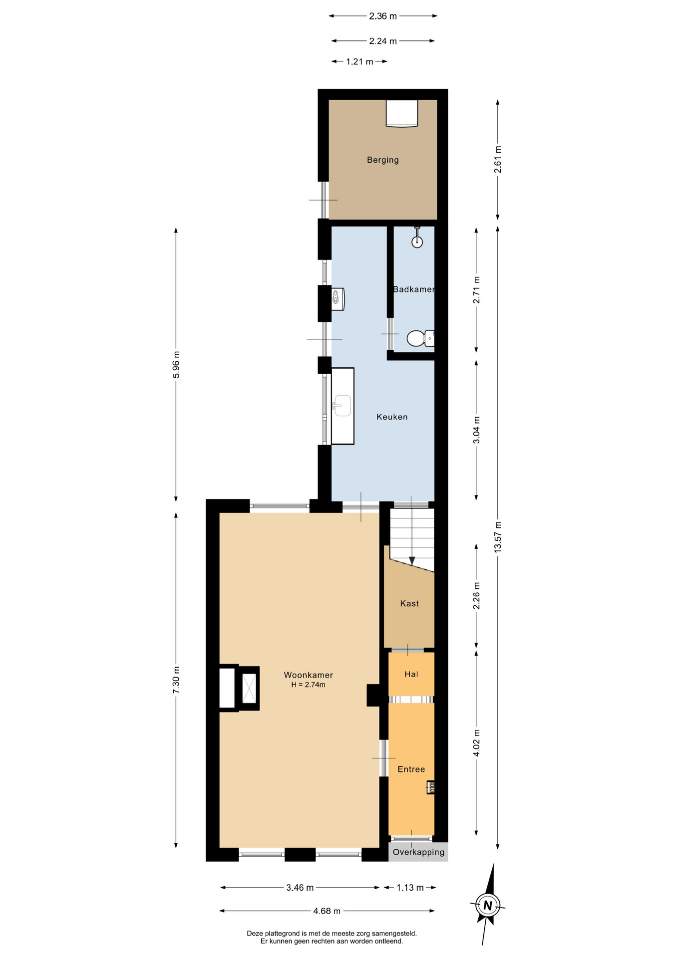
Indeling: entree, hal met meterkast en toegang tot de woonkamer. Lange woonkamer met hoge plafonds en gashaard. Dit is voor eventuele bijverwarming want er is ook een cv-installatie aanwezig. De begane grondvloer is van beton en afgewerkt met een laminaatvloer. In de uitbouw een eenvoudige keukenopstelling, maar voldoende ruimte voor een uitbreiding met inbouwapparatuur etc. Aansluitend de bijkeuken met de cv-ketel en de douche en het toilet. De achtertuin is zonnig en v.v. bestrating, beplanting en berging. Je kunt hier goed met de fiets achterom komen.

 

Op de 1e verdieping tref je 3 slaapkamers aan en een toegang tot een kleine bergzolder.

 

Kom kijken!

 

De woning wordt aangeboden met een richtprijs van €145.000,- k.k.

Buurt:

van Galenbuurt

De Van Galenbuurt is een buurt in de wijk Stad binnen de Linie-West (wijk 02), gelegen in de gemeente Den Helder in de provincie Noord-Holland. De Van Galenbuurt telt circa 2.150 inwoners.

Bezichtiging / meer info

De Ruijterstraat 29, Den Helder

Wil je meer informatie over dit pand of een bezichtiging plannen? Vul het formulier in en wij nemen contact met je op.