Volg ons
A
Te koop

Fluytstraat 31

€ 365.000,- k.k.
112 m²
/  142 m²
4 slaapkamers

Dit prachtige woonhuis staat in een gezellige straat. Op korte afstand tref je scholen, winkels, het NS-station en voetbalclubs. De woning is goed geïsoleerd en wordt nu verwarmd via cv-ketel, maar is ook geschikt voor een hybride warmtepomp.

Deel op social media:

Kenmerken

Bouwjaar: 2009
Energielabel: A
Type ketel: Intergas
Jaar ketel: 2009
Buurt: Schepenbuurt
Aanvaarding: In overleg
Soort: Eengezinswoning
Type: Tussenwoning
Woonoppervlakte: 112 m²
Perceeloppervlakte: 142 m²
Inhoud: 406 m³
Aantal kamers: 5
Aantal slaapkamers: 4
Aantal woonlagen: 3
Bouwvorm: Bestaande bouw
Ligging: Noordwest

Isolatie: Volledig geïsoleerd, HR-glas

Dak type: Zadeldak

Dak materialen: Pannen

Tuin: Achtertuin

Buitenruimtes: Achtertuin

Berging / schuur: Vrijstaande houten berging

Parkeerfaciliteiten: Openbaar parkeren

Bouwjaar:
2009
Energielabel:
A
Buurt:
Schepenbuurt
Aanvaarding:
In overleg
Soort:
Eengezinswoning
Type:
Tussenwoning
Woonoppervlak:
112 m²
Perceeloppervlak:
142 m²
Inhoud:
406 m³
Aantal kamers:
5 kamers
Aantal slaapkamers:
4 slaapkamers
Aantal woonlagen:
3 verdiepingen
Bouwvorm:
Bestaande bouw
Ligging:
Noordwest
Dak type:
Zadeldak
Dak materialen:
Pannen
Tuin:
Achtertuin
Buitenruimtes:
Achtertuin
Parkeerfaciliteiten:
Openbaar parkeren
Isolatie:
Volledig geïsoleerd
HR-glas
Isolatie:
Volledig geïsoleerd
HR-glas

Omschrijving

Dit prachtige woonhuis staat in een gezellige straat. Op korte afstand tref je scholen, winkels, het NS-station en voetbalclubs. De woning is goed geïsoleerd en wordt nu verwarmd via cv-ketel, maar is ook geschikt voor een hybride warmtepomp.

 

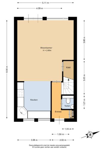
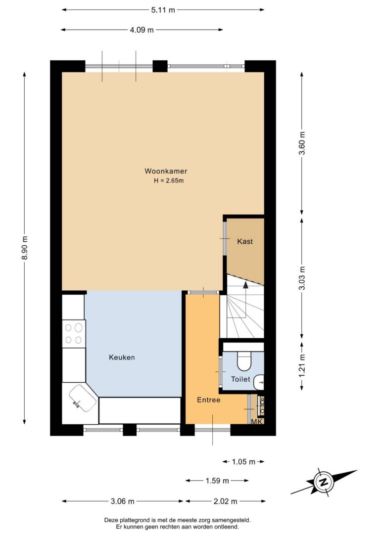
Indeling: entree, hal met meterkast, toiletruimte en trapopgang. De woonkamer is tuingericht en netjes afgewerkt. Je hebt veel lichtinval via de achterzijde. De keuken tref je hier aan de voorzijde van de woning en deze biedt veel werkruimte en is ingericht met inbouwapparatuur waaronder een vaatwasser. De achtertuin is zonnig, deels bestraat en ook nog voorzien van gazon. Achterin staat een mooie grote schuur voor de fietsen, motoren en/of andere opslag.

 

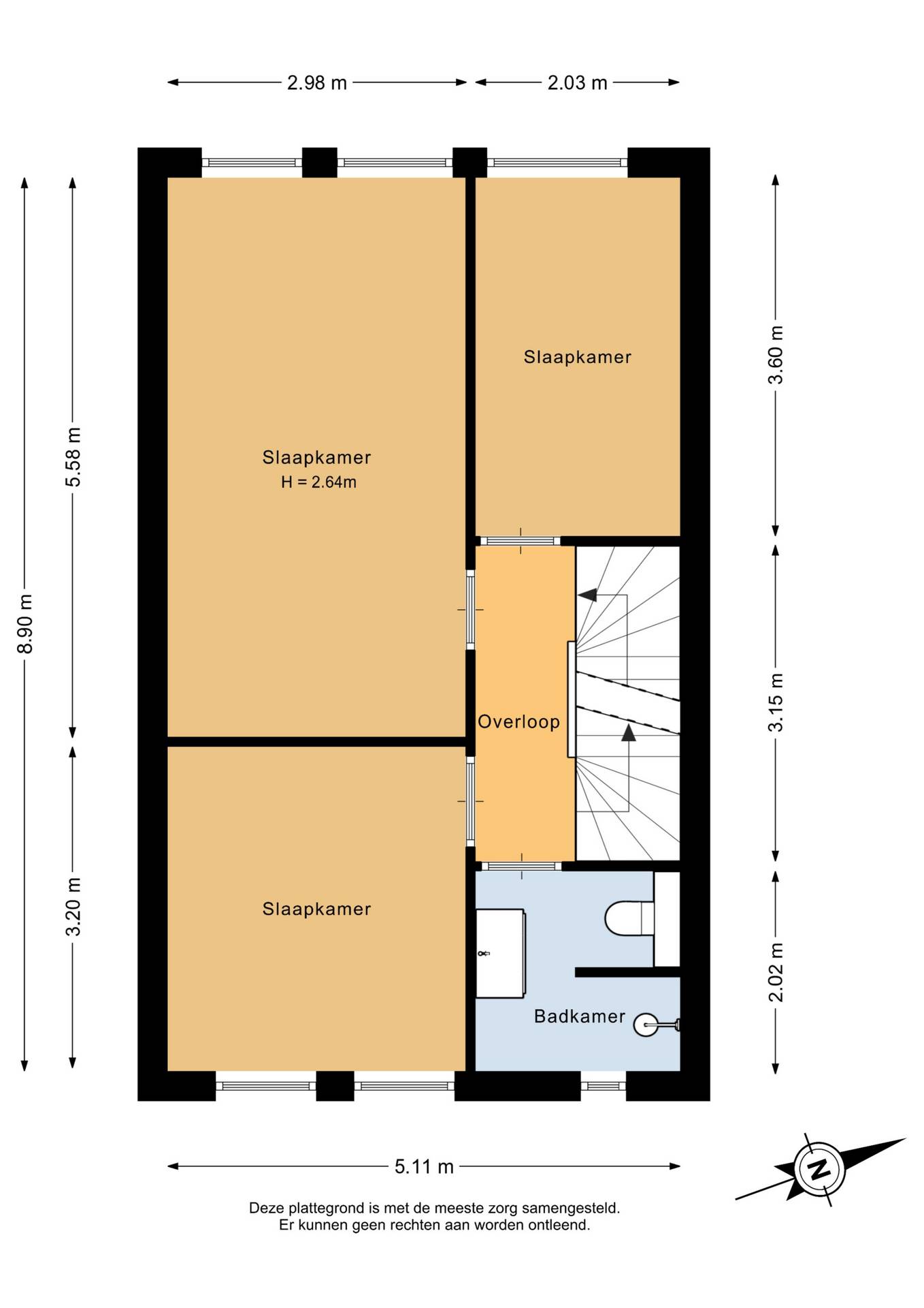
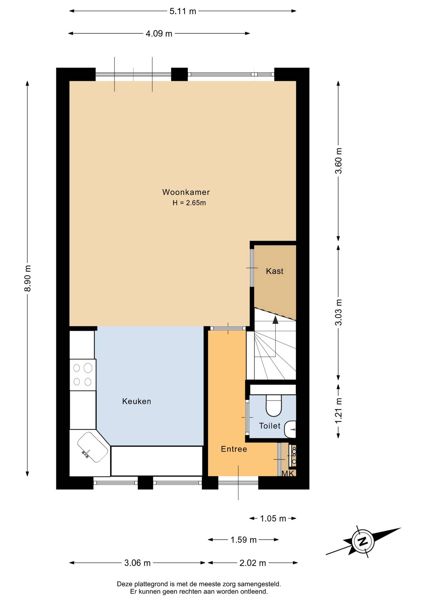
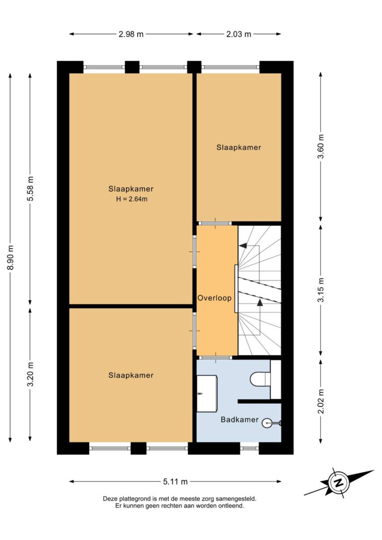
Op de 1e verdieping zijn 3 ruime slaapkamers aanwezig. Je hebt hier een mooie hoogte wat ruimtelijk prachtig is. De badkamer is volledig betegeld en ingericht met wastafelmeubel, inloopdouche en 2e toilet.

 

Op de 2e verdieping tref je een grote 4e slaapkamer aan en de opstelling cv- ketel en de aansluiting van de wasmachine.

 

Dit is een prachtige gezinswoning! Laat je verrassen tijdens een rondleiding.

 

De woning wordt aangeboden met een richtprijs van € 365.000,- k.k.

Buurt:

Schepenbuurt

De Schepenbuurt is een woonbuurt in de wijk Nieuw Den Helder-Oost (wijk 04), gelegen in de gemeente Den Helder in de provincie Noord-Holland. De Schepenbuurt telt circa 1.595 inwoners.
Play Video

Bezichtiging / meer info

Fluytstraat 31, Den Helder

Wil je meer informatie over dit pand of een bezichtiging plannen? Vul het formulier in en wij nemen contact met je op.