Volg ons
B
Te koop

Harpoenierstraat 36

€ 475.000,- k.k.
149 m²
/  112 m²
3 slaapkamers

Een ruime drive-in woning met inpandige garage en eigen oprit ligt in een rustige, kindvriendelijke wijk in Den Helder.

Deel op social media:

Kenmerken

Bouwjaar: 1975
Energielabel: B
Type ketel: Atag
Jaar ketel: 2025
Buurt: Schooten-Centrum
Aanvaarding: In overleg
Soort: Eengezinswoning
Type: Tussenwoning
Woonoppervlakte: 149 m²
Perceeloppervlakte: 112 m²
Inhoud: 635 m³
Aantal kamers: 5
Aantal slaapkamers: 3
Aantal woonlagen: 4
Bouwvorm: Bestaande bouw
Ligging: Zuid

Isolatie: Dakisolatie, HR++glas

Dak type: Zadeldak

Dak materialen: Pannen

Tuin: Achtertuin

Buitenruimtes: Balkon, Dakterras

Berging / schuur: Vrijstaande houten berging

Parkeerfaciliteiten: Op eigen terrein

Garage: Inpandig

Bouwjaar:
1975
Energielabel:
B
Buurt:
Schooten-Centrum
Aanvaarding:
In overleg
Soort:
Eengezinswoning
Type:
Tussenwoning
Woonoppervlak:
149 m²
Perceeloppervlak:
112 m²
Inhoud:
635 m³
Aantal kamers:
5 kamers
Aantal slaapkamers:
3 slaapkamers
Aantal woonlagen:
4 verdiepingen
Bouwvorm:
Bestaande bouw
Ligging:
Zuid
Dak type:
Zadeldak
Dak materialen:
Pannen
Tuin:
Achtertuin
Buitenruimtes:
Balkon
Dakterras
Parkeerfaciliteiten:
Op eigen terrein
Garage:
Inpandig
Isolatie:
Dakisolatie
HR++glas
Isolatie:
Dakisolatie
HR++glas

Omschrijving

Deze ruime drive-in woning met inpandige garage en eigen oprit ligt in een rustige, kindvriendelijke wijk in Den Helder. Scholen, sportvoorzieningen en winkels bevinden zich op loopafstand, terwijl strand, duinen en bos snel per fiets bereikbaar zijn. Ook het centrum en openbaar vervoer zijn dichtbij. De ligging is bovendien ideaal dankzij de goede aansluiting op uitvalswegen richting Julianadorp, Schagen en Alkmaar.

 

De woning biedt veel ruimte, verdeeld over meerdere woonlagen met een speelse indeling, grote ramen en volop lichtinval. Dankzij de kunststof kozijnen geniet je van een woning die onderhoudsvriendelijk is.

 

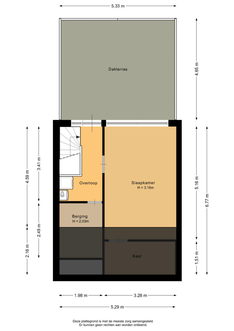
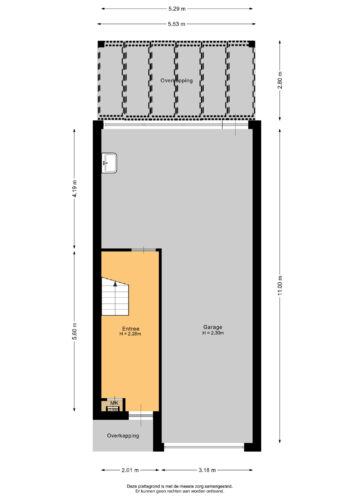
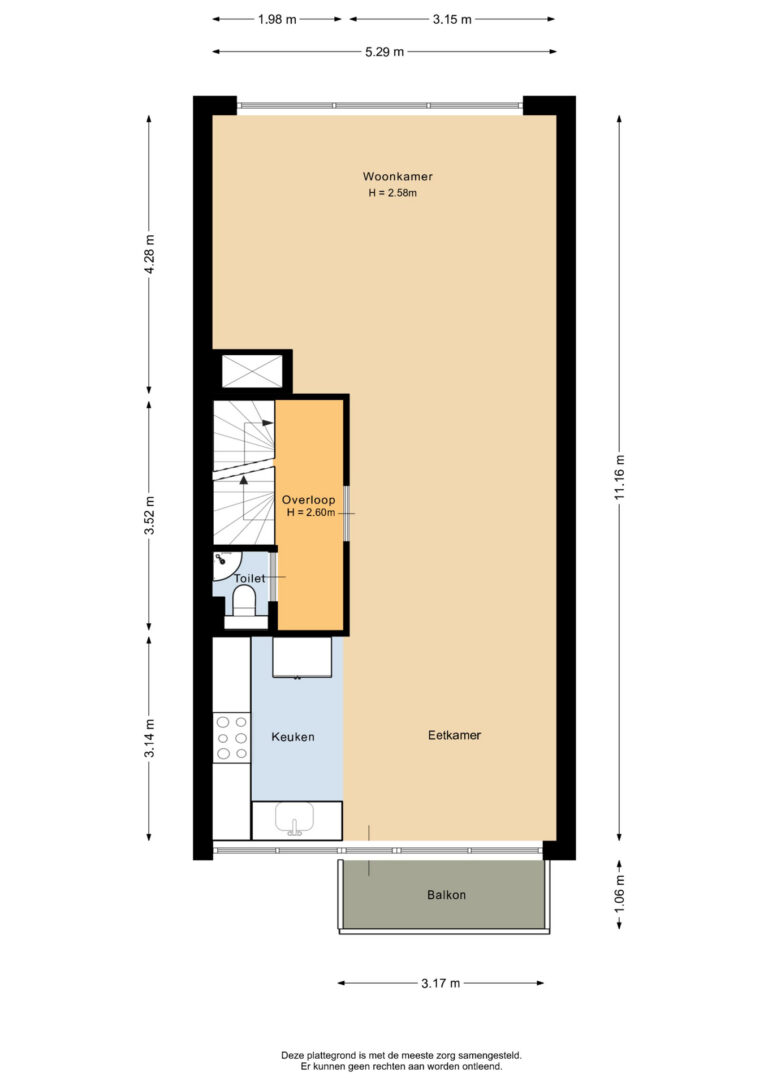
De indeling is als volgt:
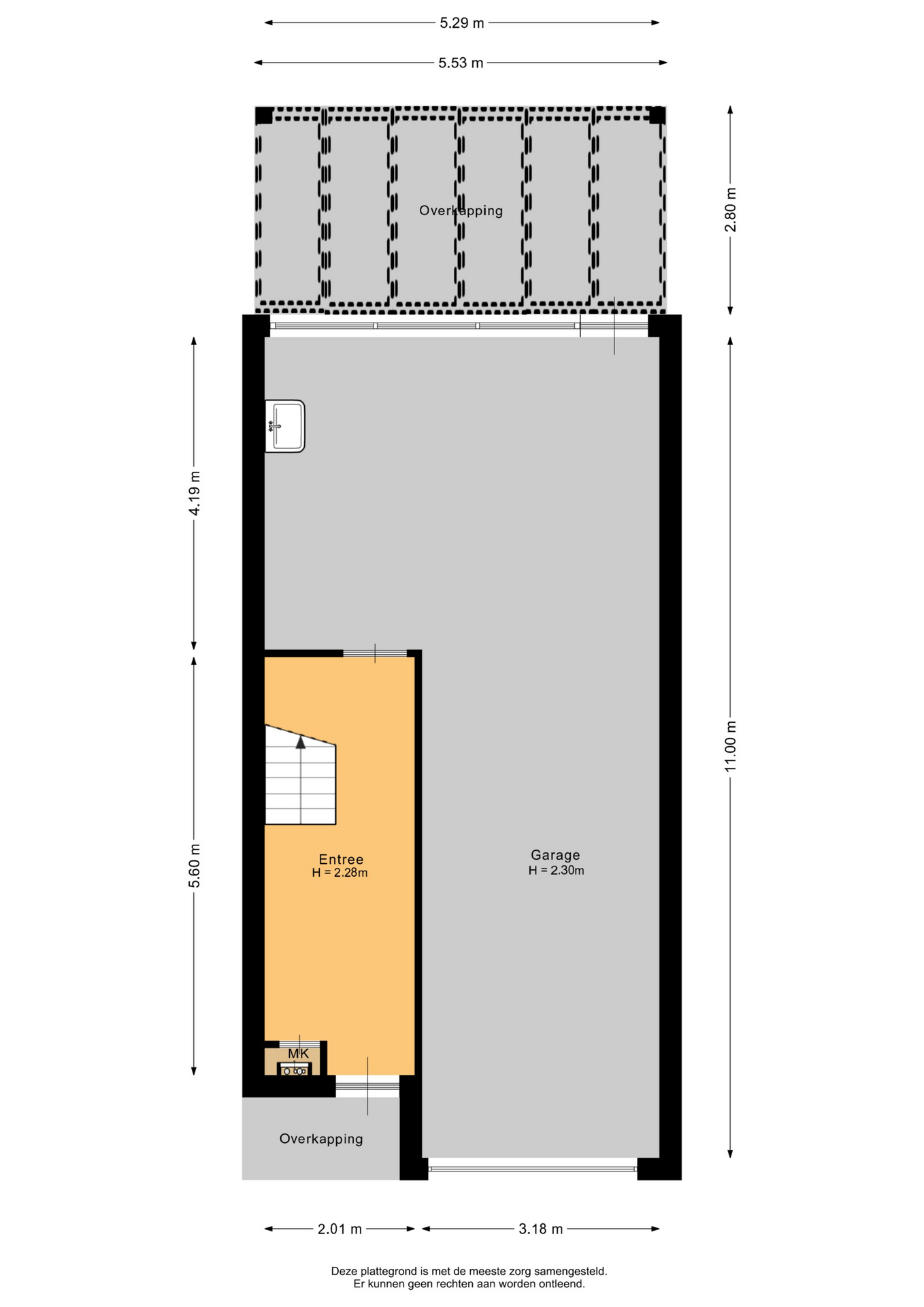
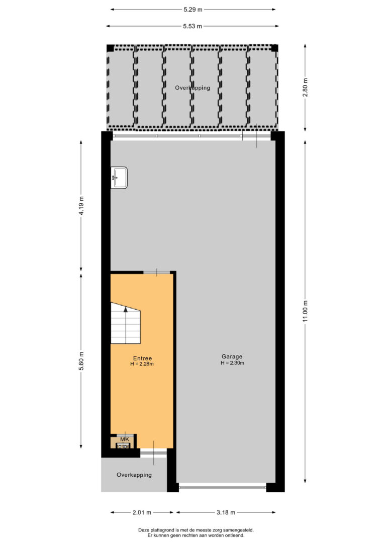
Vanuit de hal kun je de trap op naar de woonverdieping of je stapt de ruime, inpandige garage binnen. Ideaal voor het parkeren van de auto, het stallen van fietsen of als hobbyruimte. De garage was voorheen ingericht met een kamer aan de achterzijde en deze muur is eenvoudig terug te plaatsen.

 

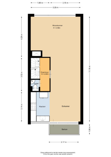
Via de trap bereik je de eerste verdieping, waar je binnenkomt op een overloop met een toiletruimte. Aan de voorzijde van deze verdieping bevindt zich de keuken. Vanuit de keuken heb je toegang tot een klein balkon met uitzicht over de straat. Een goede plek voor een kop koffie in de ochtend! De woonkamer ligt aan de achterzijde en dankzij de grote ramen valt er veel natuurlijk licht naar binnen. De houthaard zorgt voor sfeer en warmte in de wintermaanden.

 

De tweede verdieping biedt twee royale slaapkamers. Deze verdieping telde voorheen drie kamers en indien gewenst kan de kamer aan de voorzijde weer worden opgedeeld. De badkamer is vergroot en daardoor is er ruimte ontstaan voor een dubbele wastafel, hoekbad met whirlpoolfunctie en een douchecabine. Op de overloop is een separaat toilet met fontein aanwezig.

 

Op de derde verdieping vind je een fijne derde slaapkamer en toegang tot het riante dakterras. Op de overloop zijn de cv-ketel en de aansluitingen voor het witgoed geplaatst, met aansluitend een praktische bergruimte. Ook in de slaapkamer is extra opbergruimte aanwezig onder de schuine kap. Het dakterras vormt een heerlijke buitenplek: hier kun je in alle rust genieten van de zon en het uitzicht over de wijk.

 

De achtertuin is netjes aangelegd met bestrating, beplanting en een dierenverblijf. Het geheel wordt omheind met solide hout-beton schuttingen. Dankzij de gunstige ligging op het zuiden kun je hier volop van de zon genieten.

 

Kortom: Harpoenierstraat 36 is een ruime woning met mogelijkheden voor het creëren van extra (slaap)kamers.

 

Ben je nieuwsgierig geworden? Plan dan een bezichtiging, wij leiden je graag rond!

 

Deze woning wordt aangeboden met een richtprijs van € 475.000,-.

Buurt:

Schooten-Centrum

Schooten-Centrum is een buurt van de wijk Wijk 05 De Schooten in de gemeente Den Helder en ligt in de provincie Noord-Holland. Het inwonersaantal van de buurt Schooten-Centrum is 820 inwoners.
Play Video

Bezichtiging / meer info

Harpoenierstraat 36, Den Helder

Wil je meer informatie over dit pand of een bezichtiging plannen? Vul het formulier in en wij nemen contact met je op.