Volg ons
D
Te koop

Janzenstraat 44

€ 245.000,- k.k.
95 m²
/  115 m²
3 slaapkamers

Na 50 jaar hier met veel plezier te hebben gewoond gaan de eigenaren de sleutels overdragen aan een nieuwe enthousiaste koper.

Deel op social media:

Kenmerken

Bouwjaar: 1950
Energielabel: D
Type ketel: Intergas
Jaar ketel: 2010
Aanvaarding: In overleg
Soort: Eengezinswoning
Type: Tussenwoning
Woonoppervlakte: 95 m²
Perceeloppervlakte: 115 m²
Inhoud: 351 m³
Aantal kamers: 4
Aantal slaapkamers: 3
Aantal woonlagen: 2
Bouwvorm: Bestaande bouw
Ligging: Noordwest

Isolatie: Dakisolatie, Muurisolatie, Vloerisolatie, HR++glas

Dak type: Zadeldak

Dak materialen: Pannen

Tuin: Achtertuin

Berging / schuur: Vrijstaande stenen berging

Parkeerfaciliteiten: Openbaar parkeren

Voorzieningen: Elektrische deur

Bijzonderheden: Open haard

Bouwjaar:
1950
Energielabel:
D
Aanvaarding:
In overleg
Soort:
Eengezinswoning
Type:
Tussenwoning
Woonoppervlak:
95 m²
Perceeloppervlak:
115 m²
Inhoud:
351 m³
Aantal kamers:
4 kamers
Aantal slaapkamers:
3 slaapkamers
Aantal woonlagen:
2 verdiepingen
Bouwvorm:
Bestaande bouw
Ligging:
Noordwest
Dak type:
Zadeldak
Dak materialen:
Pannen
Tuin:
Achtertuin
Parkeerfaciliteiten:
Openbaar parkeren
Voorzieningen:
Elektrische deur
Isolatie:
Dakisolatie
Muurisolatie
Vloerisolatie
HR++glas
Isolatie:
Dakisolatie
Muurisolatie
Vloerisolatie
HR++glas
Bijzonderheden:
Open haard

Omschrijving

Na 50 jaar hier met veel plezier te hebben gewoond gaan de eigenaren de sleutels overdragen aan een nieuwe enthousiaste koper.

 

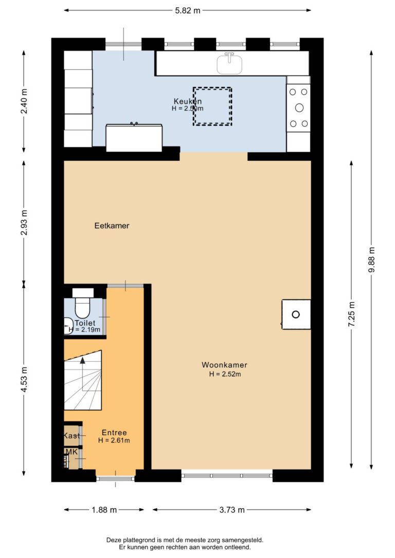
Wat opvalt als je in de Janzenstraat aankomt is dat de woning er heel verzorgd uitziet maar vooral ook heel breed.
In de hal een plavuizenvloer, gangkast en het keurige toilet met vrijdragend closet en fontein.
Deur naar de heerlijk ruime woonkamer met palletkachel. Op de vloer een mooie eiken houten vloer. De voorzijde is recent vernieuwd met kunststof kozijnen met raambekleding en elektrische zonwering aan de buitenzijde.

 

De open keuken is in de aanbouw welke gerealiseerd is in 2004. Mooie zeer riante keuken met een 5-pits gaskookplaat, vaatwasser, magnetron, elektrische oven, Amerikaanse koelkast en ook de opstelling van het witgoed mooi weggewerkt.
Ook aan de achterzijde kunststof kozijnen met screens (handmatig) en deur naar de tuin.

 

Op de verdieping zijn twee ruime slaapkamers beide met dakkapel en keurige laminaatvloer. Een derde iets kleinere kamer. Alles ook uitgevoerd in kunststof. De badkamer is eveneens op de verdieping en vernieuwd in 2008 met een inloopdouche (2 naar binnen slaande deuren), wastafelmeubel en designradiator. Kunststof dakraam. Apart toilet op de overloop (’13).

 

Vaste trap (’13) naar de bergzolder met de opstelling van de CV ketel (’10) en een dakraam.
De achtertuin is mooi breed en betegeld en geeft toegang tot de zeer riante berging met elektrische overheaddeur.
Ideaal voor motorliefhebbers of boosters of anderzijds.
Krachtstroom is aanwezig en ook de werkbank staat al klaar.

 

De begane grond heeft een betonnen vloer, verdiepingsvloeren zijn van hout. De spouw is geïsoleerd in 2015 en ook het dak is geïsoleerd. Kortom goed onderhouden woning midden in het centrum!

Play Video

Bezichtiging / meer info

Janzenstraat 44, Den Helder

Wil je meer informatie over dit pand of een bezichtiging plannen? Vul het formulier in en wij nemen contact met je op.