Volg ons
C
Verkocht

Marina-Park 296

55 m²
1 slaapkamers

Dit nette appartement is klaar voor bewoning. Het appartement ligt op de bovenste verdieping van het complex en biedt een hoop privacy.

Deel op social media:

Kenmerken

Bouwjaar: 1981
Energielabel: C
Type ketel: Intergas
Jaar ketel: 2011
Buurt: Marina
Aanvaarding: In overleg
Soort: Portiekflat
Type: Appartement
VVE: € 155 per maand
Woonoppervlakte: 55 m²
Inhoud: 189 m³
Aantal kamers: 2
Aantal slaapkamers: 1
Aantal woonlagen: 1
Eigendom: Erfpacht
Bouwvorm: Bestaande bouw
Ligging: Zuid

Isolatie: Vloerisolatie, Dubbel glas

Dak type: Zadeldak

Dak materialen: Pannen

Buitenruimtes: Balkon

Berging / schuur: Box

Parkeerfaciliteiten: Openbaar parkeren

Bouwjaar:
1981
Energielabel:
C
Buurt:
Marina
Aanvaarding:
In overleg
Soort:
Portiekflat
Type:
Appartement
Woonoppervlak:
55 m²
Inhoud:
189 m³
Aantal kamers:
2 kamers
Aantal slaapkamers:
1 slaapkamers
Aantal woonlagen:
1 verdiepingen
Eigendom:
Erfpacht
Bouwvorm:
Bestaande bouw
Ligging:
Zuid
Dak type:
Zadeldak
Dak materialen:
Pannen
Buitenruimtes:
Balkon
Parkeerfaciliteiten:
Openbaar parkeren
Isolatie:
Vloerisolatie
Dubbel glas
Isolatie:
Vloerisolatie
Dubbel glas

Omschrijving

Dit nette appartement is klaar voor bewoning. Het appartement ligt op de bovenste verdieping van het complex en biedt een hoop privacy. De Vereniging van Eigenaren is gezond en wordt professioneel bestuurd.

 

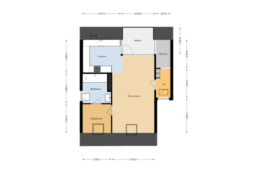
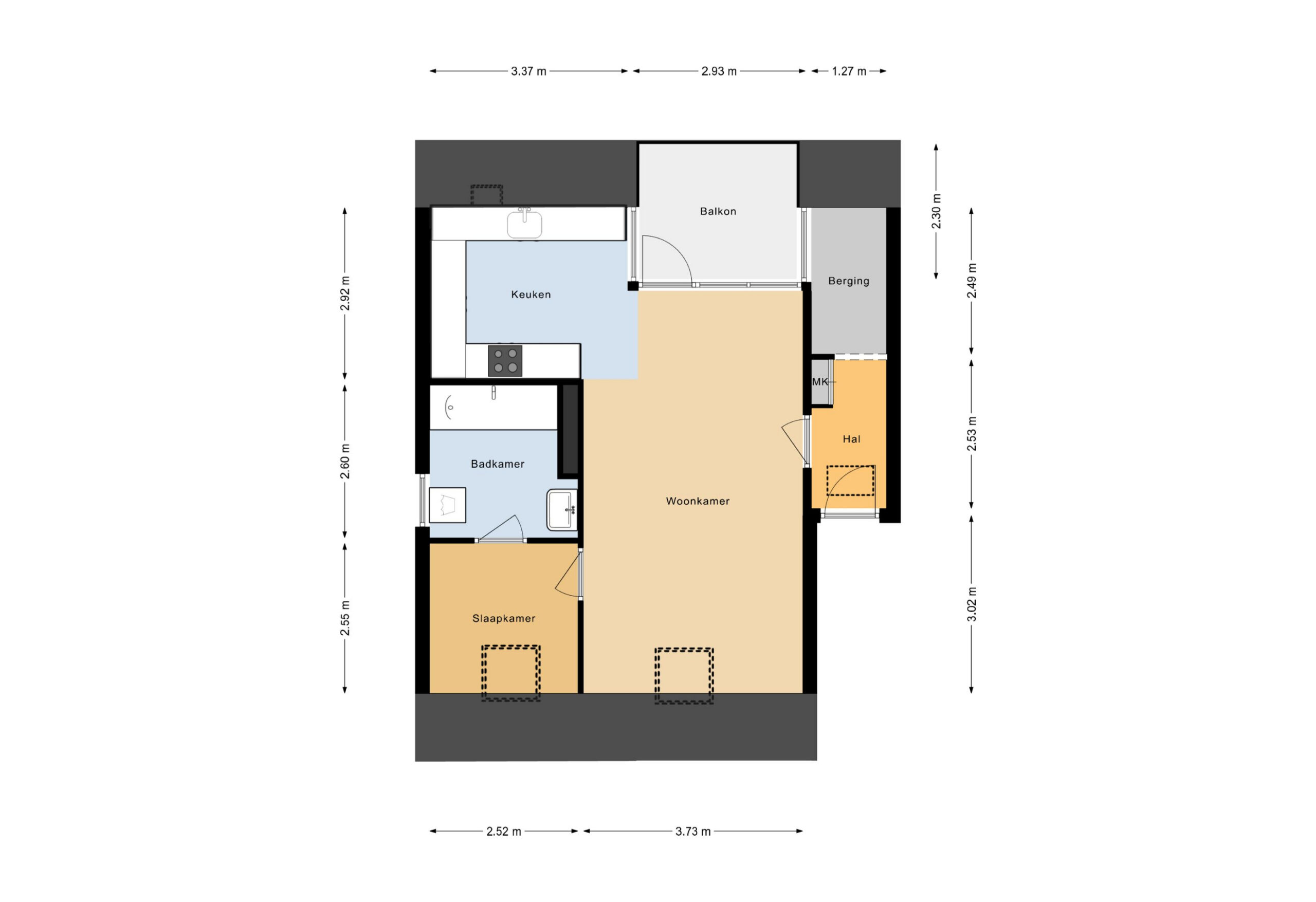
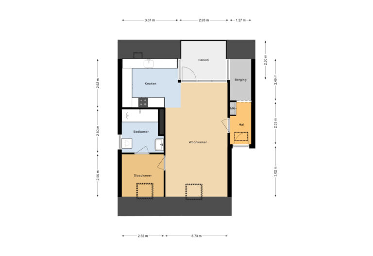
Indeling woning: entree, hal met meterkast en grote bergruimte die gebruikt kan worden als kleine werkkamer, kast voor opslag of kledingkast. De woonkamer is ruim en heeft een mooie lichtinval. De open keuken is in hoekopstelling uitgevoerd en voorzien van 5-pits gaskookplaat, afzuigkap en losse vaatwasser. Er is een fijn groot buitenterras op het zonnige zuiden. Hier kun je heerlijk genieten van de zonnige dagen in het jaar.
De woning heeft 1 grote slaapkamer en een grote badkamer met ligbad, douche, wastafel en toilet.

 

Via een luik in de hal is een extra verdieping te bereiken. Hier hebben veel bewoners met vergelijkbare appartementen een extra slaapkamer gerealiseerd. Dat is dus hier ook mogelijk, echter daar is toestemming van de VVE voor noodzakelijk.
Kom eens kijken dan leggen we het je graag uit.

 

De servicekosten van de VvE bedragen € 155,- per maand.
Het appartement wordt aangeboden met een richtprijs van € 189.500,- k.k.

Buurt:

Marina

Marina is een buurt van de wijk Wijk 05 De Schooten in de gemeente Den Helder en ligt in de provincie Noord-Holland. Het inwonersaantal van de buurt Marina is 1.390 inwoners.
Play Video

Bezichtiging / meer info

Marina-Park 296, Den Helder

Wil je meer informatie over dit pand of een bezichtiging plannen? Vul het formulier in en wij nemen contact met je op.