Volg ons
C
Onder bod

Middelzand 5205

€ 275.000,- k.k.
92 m²
/  143 m²
3 slaapkamers

Deze nette starterswoning is zeker een bezichtiging waard! De woning is netjes onderhouden en in feite zo te betrekken. Voor de woning een eigen oprit en aan de achterzijde een mooie grote, zonnige achtertuin. Wat wil je nog meer?!

Deel op social media:

Kenmerken

Bouwjaar: 1977
Energielabel: C
Type ketel: Intergas
Jaar ketel: 2017
Buurt: Middelzand
Aanvaarding: In overleg
Soort: Eengezinswoning
Type: Tussenwoning
Woonoppervlakte: 92 m²
Perceeloppervlakte: 143 m²
Inhoud: 328 m³
Aantal kamers: 4
Aantal slaapkamers: 3
Aantal woonlagen: 2
Bouwvorm: Bestaande bouw
Ligging: Zuid

Isolatie: Dubbel glas

Dak type: Zadeldak

Dak materialen: Pannen

Tuin: Achtertuin

Buitenruimtes: Balkon

Berging / schuur: Vrijstaande stenen berging

Parkeerfaciliteiten: Op eigen terrein

Bouwjaar:
1977
Energielabel:
C
Buurt:
Middelzand
Aanvaarding:
In overleg
Soort:
Eengezinswoning
Type:
Tussenwoning
Woonoppervlak:
92 m²
Perceeloppervlak:
143 m²
Inhoud:
328 m³
Aantal kamers:
4 kamers
Aantal slaapkamers:
3 slaapkamers
Aantal woonlagen:
2 verdiepingen
Bouwvorm:
Bestaande bouw
Ligging:
Zuid
Dak type:
Zadeldak
Dak materialen:
Pannen
Tuin:
Achtertuin
Buitenruimtes:
Balkon
Parkeerfaciliteiten:
Op eigen terrein
Isolatie:
Dubbel glas
Isolatie:
Dubbel glas

Omschrijving

Deze nette starterswoning is zeker een bezichtiging waard! De woning is netjes onderhouden en in feite zo te betrekken. Voor de woning een eigen oprit en aan de achterzijde een mooie grote, zonnige achtertuin. Wat wil je nog meer?!

 

Indeling: schuur aan de voorzijde van de woning, entree, hal met meterkast en toiletruimte. De woonkamer is tuingericht en heeft veel privacy en lichtinval. Je kunt hier een royale bank kwijt en een mooi tv-meubel. De keuken bevindt zich aan de voorzijde en deze is nu uitgevoerd in een L-vormige variant, maar we zijn in de buurt ook al U-vormige modellen tegengekomen. Er is genoeg ruimte om te kunnen kiezen. De huidige keuken is netjes en met inbouwapparatuur uitgevoerd waaronder een vaatwasser. De achtertuin is v.v. gazon en een terras aan voor- en achterzijde.

 

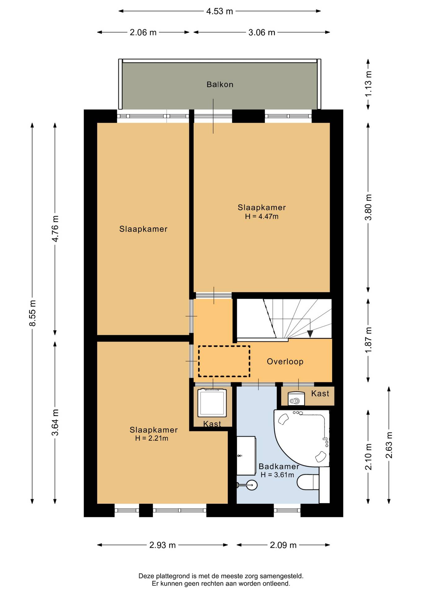
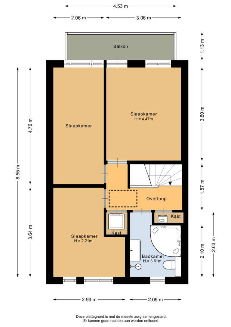
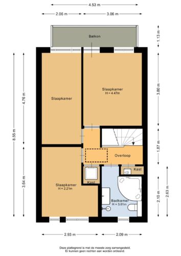
Op de verdieping tref je 3 nette slaapkamers aan en nog een mooie hoeveelheid bergruimte. De badkamer is volledig betegeld en ingericht met ligbad, douche en wastafel. Op de overloop is een cv-kast te vinden en een kast voor de wasmachine en -droger. De woning staat op 143 m2 eigen grond en is uitgevoerd met isolatieglas.

 

Ben jij nieuwsgierig geworden? Bel snel voor een bezichtiging.

 

De woning wordt aangeboden met een richtprijs van € 275.000,- k.k.

Buurt:

Middelzand

Middelzand is een buurt van de wijk Wijk 08 Julianadorp in de gemeente Den Helder en ligt in de provincie Noord-Holland. Het inwonersaantal van de buurt Middelzand is 1.800 inwoners.
Play Video

Bezichtiging / meer info

Middelzand 5205, Julianadorp

Wil je meer informatie over dit pand of een bezichtiging plannen? Vul het formulier in en wij nemen contact met je op.