Volg ons
B
Onder bod

Praamstraat 71

€ 395.000,- k.k.
133 m²
/  169 m²
5 slaapkamers

Wat een heerlijke plek om thuis te komen! In deze rustige, kindvriendelijke straat vind je volop parkeergelegenheid, een leuke speeltuin voor de deur én een eigen carport voor de auto.

Deel op social media:

Kenmerken

Bouwjaar: 1971
Energielabel: B
Type ketel: Intergas
Jaar ketel: 2008
Buurt: Nieuw Den Helder Zuid-Oost
Aanvaarding: In overleg
Soort: Eengezinswoning
Type: Tussenwoning
Woonoppervlakte: 133 m²
Perceeloppervlakte: 169 m²
Inhoud: 442 m³
Aantal kamers: 6
Aantal slaapkamers: 5
Aantal woonlagen: 3
Bouwvorm: Bestaande bouw
Ligging: West

Isolatie: Muurisolatie, Vloerisolatie

Tuin: Achtertuin

Berging / schuur: Vrijstaande stenen berging

Parkeerfaciliteiten: Op eigen terrein

Garage: Carport

Bijzonderheden: Vloerverwarming (gedeeltelijk)

Bouwjaar:
1971
Energielabel:
B
Buurt:
Nieuw Den Helder Zuid-Oost
Aanvaarding:
In overleg
Soort:
Eengezinswoning
Type:
Tussenwoning
Woonoppervlak:
133 m²
Perceeloppervlak:
169 m²
Inhoud:
442 m³
Aantal kamers:
6 kamers
Aantal slaapkamers:
5 slaapkamers
Aantal woonlagen:
3 verdiepingen
Bouwvorm:
Bestaande bouw
Ligging:
West
Tuin:
Achtertuin
Parkeerfaciliteiten:
Op eigen terrein
Garage:
Carport
Isolatie:
Muurisolatie
Vloerisolatie
Isolatie:
Muurisolatie
Vloerisolatie
Bijzonderheden:
Vloerverwarming (gedeeltelijk)

Omschrijving

Ruime gezinswoning met 5 grote slaapkamers en prachtig vrij uitzicht!

 

Wat een heerlijke plek om thuis te komen! In deze rustige, kindvriendelijke straat vind je volop parkeergelegenheid, een leuke speeltuin voor de deur én een eigen carport voor de auto.

 

De woning is goed onderhouden, voorzien van kunststof kozijnen en in 2020 zijn zowel de vloer als de spouwmuren geïsoleerd – comfortabel én energiezuinig.
Bij binnenkomst in de hal vind je een praktische schuifkast met garderoberuimte en de meterkast (8 groepen, 3 aardlekschakelaars en een kookgroep). Het moderne toilet beschikt over een fonteintje.

 

Via de glazen tussendeur kom je in de lichte woonkamer. Aan de voorzijde bevindt zich het gezellige zitgedeelte met groot raam, en aan de achterzijde valt direct de moderne, zwarte kunststof pui (2019) op die zorgt voor veel lichtinval en een prachtig zicht op de tuin.
De luxe open keuken is een echte eyecatcher: voorzien van een kookeiland, veel kastruimte en hoogwaardige inbouwapparatuur, waaronder een inductiekookplaat met geïntegreerde afzuiging, koelkast, combimagnetron, stoomoven en vaatwasser.

 

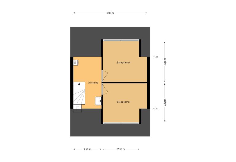
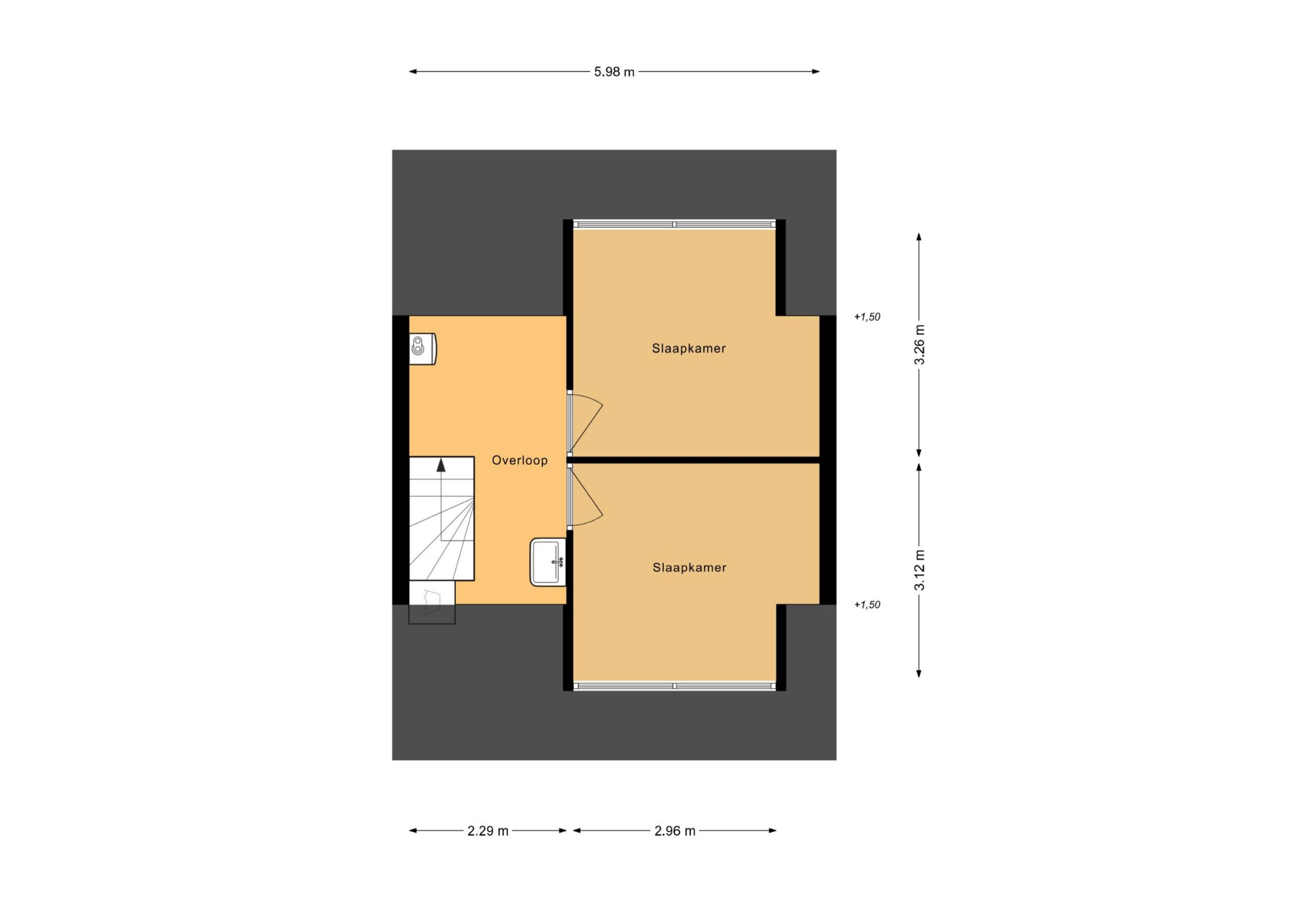
Op de eerste verdieping zijn drie ruime slaapkamers met een mooie eikenhouten vloer. De slaapkamer aan de voorzijde beschikt over een vaste schuifkast; de slaapkamers aan de achterzijde zijn uitgerust met elektrische rolluiken.
De badkamer is drie jaar geleden vernieuwd en straalt pure ontspanning uit. Er is een ruime douchecabine met stort- en handdouche, een whirlpool, een tweede toilet, een stijlvol wastafelmeubel en een designradiator.

 

Via de vaste trap bereik je de tweede verdieping. Op de voorzolder bevinden zich de wasmachine-aansluiting, de cv-ketel en extra bergruimte achter de knieschotten. Dankzij het dakraam is ook hier volop daglicht. Zowel aan de voor- als achterzijde is een slaapkamer met dakkapel aanwezig.

 

De onderhoudsvriendelijke achtertuin is geheel bestraat en biedt een wijds uitzicht richting natuurgebied Mariëndal. Hier wandel je zo naartoe – en het strand ligt op slechts vijf minuten fietsen!

 

Kortom: een royale, instapklare gezinswoning op een geweldige locatie, met alle comfort én de natuur binnen handbereik.

Buurt:

Nieuw Den Helder Zuid-Oost

Nieuw Den Helder Zuid-Oost is een buurt van de wijk Wijk 04 Nieuw Den Helder-Oost in de gemeente Den Helder en ligt in de provincie Noord-Holland. Het inwonersaantal van de buurt Nieuw Den Helder Zuid-Oost is 2.015 inwoners.

Bezichtiging / meer info

Praamstraat 71, Den Helder

Wil je meer informatie over dit pand of een bezichtiging plannen? Vul het formulier in en wij nemen contact met je op.