Volg ons
A +++
Onder bod

Prinses Margrietstraat 40

€ 489.000,- k.k.
132 m²
/  222 m²
3 slaapkamers

Prinses Margrietstraat 40 in Julianadorp combineert eigentijds wooncomfort met een sfeervolle uitstraling, 9 zonnepanelen en een fijne tuin. Gelegen in de populaire en jonge woonwijk Willem Alexanderhof biedt deze instapklare woning alles wat je nodig hebt voor comfortabel wonen.

Deel op social media:

Kenmerken

Bouwjaar: 2021
Energielabel: A +++
Buurt: Julianadorp-Oost
Aanvaarding: In overleg
Soort: Eengezinswoning
Type: Hoekwoning
Woonoppervlakte: 132 m²
Perceeloppervlakte: 222 m²
Inhoud: 539 m³
Aantal kamers: 4
Aantal slaapkamers: 3
Aantal woonlagen: 3
Bouwvorm: Bestaande bouw
Ligging: Noord

Isolatie: Volledig geïsoleerd, HR++glas

Dak type: Zadeldak

Dak materialen: Pannen

Tuin: Zijtuin, Achtertuin, Voortuin

Berging / schuur: Aangebouwde stenen berging

Parkeerfaciliteiten: Openbaar parkeren

Bijzonderheden: Zonnepanelen, Mechanische ventilatie, Vloerverwarming (gedeeltelijk), Dakkapel, Airconditioning, WTW-unit, Warmtepomp, Open haard

Bouwjaar:
2021
Energielabel:
A +++
Buurt:
Julianadorp-Oost
Aanvaarding:
In overleg
Soort:
Eengezinswoning
Type:
Hoekwoning
Woonoppervlak:
132 m²
Perceeloppervlak:
222 m²
Inhoud:
539 m³
Aantal kamers:
4 kamers
Aantal slaapkamers:
3 slaapkamers
Aantal woonlagen:
3 verdiepingen
Bouwvorm:
Bestaande bouw
Ligging:
Noord
Dak type:
Zadeldak
Dak materialen:
Pannen
Tuin:
Zijtuin
Achtertuin
Voortuin
Parkeerfaciliteiten:
Openbaar parkeren
Isolatie:
Volledig geïsoleerd
HR++glas
Isolatie:
Volledig geïsoleerd
HR++glas
Bijzonderheden:
Zonnepanelen
Mechanische ventilatie
Vloerverwarming (gedeeltelijk)
Dakkapel
Airconditioning
WTW-unit
Warmtepomp
Open haard

Omschrijving

Op zoek naar een moderne woning met nét dat beetje extra?

 

Prinses Margrietstraat 40 in Julianadorp combineert eigentijds wooncomfort met een sfeervolle uitstraling, 9 zonnepanelen en een fijne tuin. Gelegen in de populaire en jonge woonwijk Willem Alexanderhof biedt deze instapklare woning alles wat je nodig hebt voor comfortabel wonen.

 

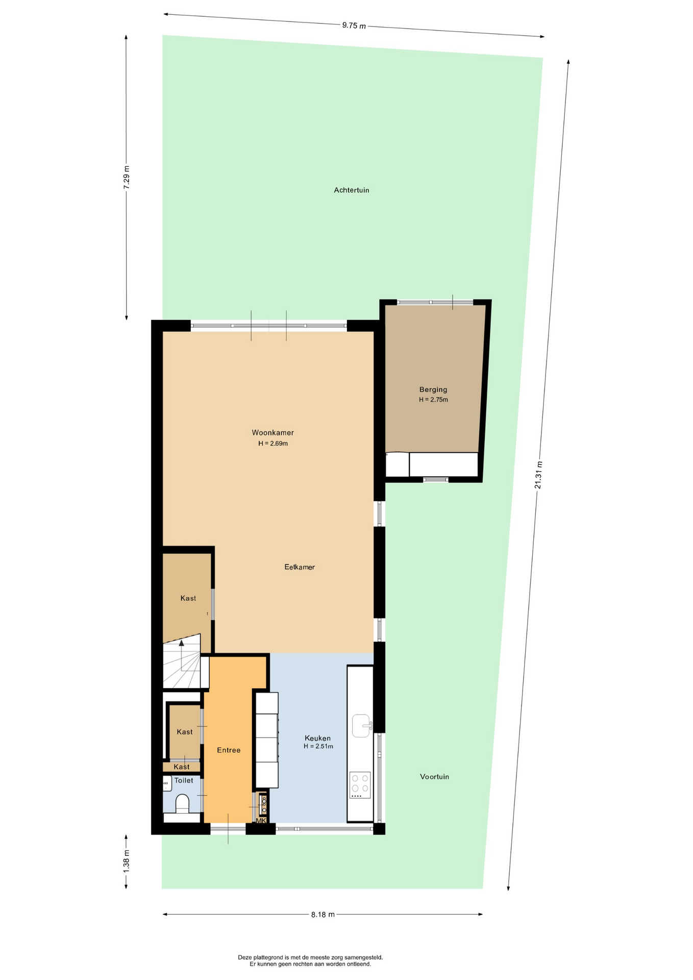
Via de keurig aangelegde voortuin bereik je de voordeur. Binnen valt direct de verzorgde en stijlvolle afwerking op: strak, modern en met oog voor detail. Het plafond is verlaagd voor inbouwspots en de wanden zijn voorzien van fraai betonstuc. De lichte, tuingerichte woonkamer loopt vloeiend over in de moderne open keuken, uitgevoerd in parallelopstelling en voorzien van alle gemakken: een inductiekookplaat met geïntegreerde afzuiging, koel-vriescombinatie, combi-stoomoven, elektrische oven, vaatwasser en Quooker.

 

De woonkamer is sfeervol ingericht met een elektrische haard, ruime trapkast en hoogwaardige afwerking met betonstuc, luxe behang en strak gestucte plafonds met platte plint. Dankzij de openslaande tuindeuren stap je zo de fraai aangelegde achtertuin in, waar keramische tegels, halfverharding en beplanting zorgen voor een verzorgd geheel. De tuin ligt op het noorden, maar dankzij de royale breedte geniet je hier volop van zon én privacy.

 

Aan de achterzijde bevindt zich de aangebouwde stenen berging met dubbele deur, tegelvloer en praktische kastenwand – ideaal voor fietsen, gereedschap of hobbyspullen. Ook een buitenkraan is aanwezig.

 

Op de verdieping is gekozen voor een slimme indeling die volledig in het teken staat van comfort. Hier vind je twee ruime slaapkamers, waarbij beide kamers beschikken over een vaste kastenwand. Vanaf de overloop toegang tot de luxe badkamer. De badkamer is stijlvol afgewerkt met betonstuc en grote wand- en vloertegels, en uitgerust met een wastafelmeubel met waskom, inloopdouche en vrijdragend toilet.

 

De zolderverdieping, bereikbaar via een vaste trap, biedt naast de opstelplaats voor het witgoed, de WTW-unit en de omvormer van de zonnepanelen ook ruimte aan een derde slaapkamer.

 

Zowel de begane grond als de badkamer zijn voorzien van vloerverwarming, wat bijdraagt aan het comfort en de luxe uitstraling van de woning. Bovendien zorgen de 9 zonnepanelen voor energiezuinig wonen.

 

De woonwijk Willem Alexanderhof staat bekend om haar jonge, kindvriendelijke karakter met een prettige dorpse sfeer. In de directe omgeving vind je winkels, basisscholen, sportvoorzieningen en natuurlijk het strand van Julianadorp aan Zee. Uitvalswegen richting Den Helder, Schagen en Alkmaar zijn uitstekend bereikbaar, evenals het openbaar vervoer.

 

De pluspunten van deze woning op een rij:
– Hoogwaardige afwerking, instapklaar
– Luxe sanitair en moderne keuken
– Aangebouwde stenen berging
– 3 ruime slaapkamers
– 9 zonnepanelen en vloerverwarming

 

Kortom: Prinses Margrietstraat 40 is een woning om verliefd op te worden. Kom de sfeer proeven en ervaar het zelf – plan snel een bezichtiging!

 

Deze woning wordt aangeboden met een richtprijs van € 489.000,-.

Buurt:

Julianadorp-Oost

Julianadorp-Oost is een buurt van de wijk Wijk 06 Het Koegras in de gemeente Den Helder en ligt in de provincie Noord-Holland. Het inwonersaantal van de buurt Julianadorp-Oost is 945 inwoners.
Play Video

Bezichtiging / meer info

Prinses Margrietstraat 40, Julianadorp

Wil je meer informatie over dit pand of een bezichtiging plannen? Vul het formulier in en wij nemen contact met je op.